Resúmen de Visitas
Últimos 30 Días
Interés Fecha Nombre Celular Email Tipo

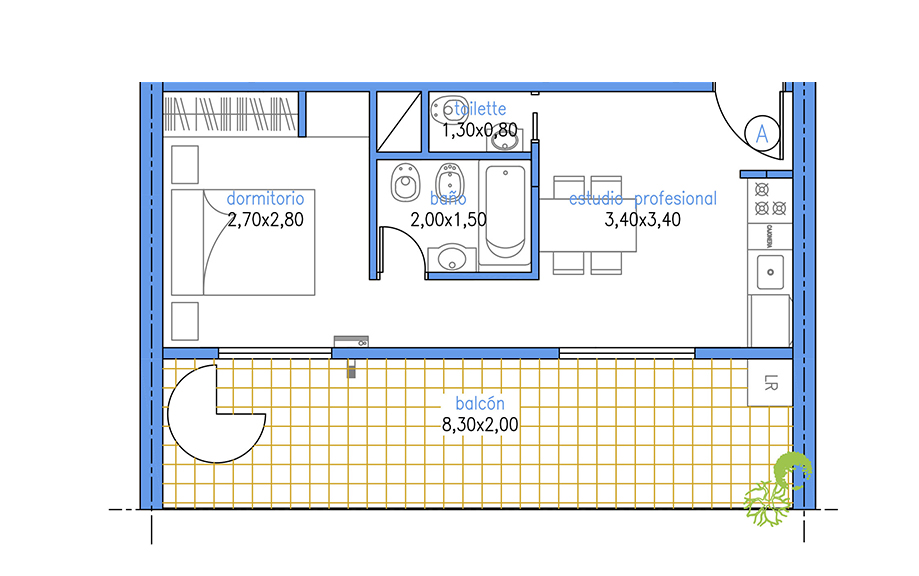
Hermoso 2 ambientes a estrenar con terraza propia, el departamento cuenta con un baño completo y un toilette de recepción, ambos revestidos con cerámicos de primera calidad, lo que añade un toque de elegancia. Cocina a gas con muebles y bajo mesada para un óptimo almacenamiento. Además, se encuentra preparada con espacio y conexión para instalar un lavarropas. La habitación principal cuenta con un placard hecho a medida, proporcionando un amplio espacio de almacenamiento, ventanas de pvc con cortinas de enrollar, que garantizan una óptima iluminación natural; además, una estufa de tiro balanceado. El edificio cuenta con una terraza de uso común, equipada con una parrilla. Este departamento se encuentra estratégicamente ubicado a pasos de las principales avenidas de la ciudad, incluyendo juan b justo y av. San martín. Esta conveniente ubicación ofrece fácil acceso a una variedad de servicios, transporte público y lugares de interés. Se deja constancia que las caracteristicas, medidas, expensas y superficies consignadas son aproximadas, sujetos a verificación y/o ajuste. El precio del inmueble puede ser modificado sin previo aviso. Fotos de carácter no contractual. Las unidades publicadas están sujetas a disponibilidad.comercializa migliorisi de corrientes 4599 srl profesional responsable jorge daniel gomez cpi 261


Información general

Superficie Cubierta

29 m2

Superficie Descubierta

29 m2

Ubicación

Frente

Baño

1

Estrenar

Construcción

Medida Dormitorios

2.8 x 2.7 c/plac

Apto Profesional

Si

Orientacion

Noroeste

Ascensores

1

Expensas

Consultar

Ambientes

2

Living

3.4 x 3.4

Cocina

Integrada

Balcon

Si

Lavadero

Integrado

Ubicación de la propiedad

Zona del inmueble.

Vista aerea sobre del inmueble.

Vista de la zonas de interes cercanas.

Se deja constancia que las caracteristicas, medidas, expensas y superficies consignadas son aproximadas, sujetos a verificación y/o ajuste. El precio del inmueble puede ser modificado sin previo aviso. Fotos de carácter no contractual. Las unidades publicadas están sujetas a disponibilidad. Comercializa Migliorisi de Corrientes 4599 SRL Profesional responsable Jorge Daniel Gomez CUCICBA 261
WhatsApp Icon