Resúmen de Visitas
Últimos 30 Días
Interés Fecha Nombre Celular Email Tipo

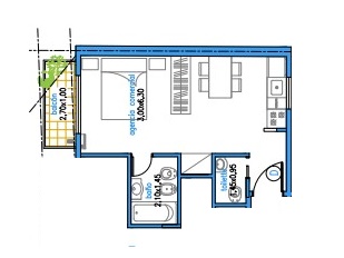
Estudios profesional de 1 ambiente con cocina integrada y balcon al contrafrente, - estufas de tiro balanceado en dormitorio. Cocinas de 4 hornallas.- pisos flotantes- ventanas de pvc con cortinas de enrollar en dormitorios- puertas internas enchapadas en madera.- herrajes de bronce.- - interior de placard divisor de ambientes - muebles bajo mesadas y alacenas en laminado plástico. - mesada de granito con bacha de acero inoxidable. - grifería fv o similar. - ascensor automático de acero inoxidable - parrilla - terraza accesible - espacio para laundry. Ubicacion ideal en pleno almagro a pocas cuadras de parque centenario. Comercializa migliorisi de corrientes 4599 srl profesional responsable jorge daniel gomez cpi 261 a29513 se deja constancia que las caracteristicas, medidas, expensas y superficies consignadas son aproximadas, sujetos a verificación y/o ajuste. El precio del inmueble puede ser modificado sin previo aviso. Fotos de carácter no contractual. Las unidades publicadas están sujetas a disponibilidad.


Información general

Superficie Cubierta

25 m2

Superficie Descubierta

3 m2

Ubicación

Contrafrente

Baño

1

Estrenar

Construcción

Apto Profesional

Si

Orientacion

Este

Ascensores

1

Expensas

Consultar

Ambientes

1

Living

6.3 x 3

Balcon

Si

Lavadero

No

Ubicación de la propiedad

Zona del inmueble.

Vista aerea sobre del inmueble.

Vista de la zonas de interes cercanas.

Se deja constancia que las caracteristicas, medidas, expensas y superficies consignadas son aproximadas, sujetos a verificación y/o ajuste. El precio del inmueble puede ser modificado sin previo aviso. Fotos de carácter no contractual. Las unidades publicadas están sujetas a disponibilidad. Comercializa Migliorisi de Corrientes 4599 SRL Profesional responsable Jorge Daniel Gomez CUCICBA 261
WhatsApp Icon