 
                            Registrate
Desuscripción inmediata
 
                            Completando este formulario podra solicitar mas información sobre esta propiedad Completando este formulario podra recibir información de propiedades similares
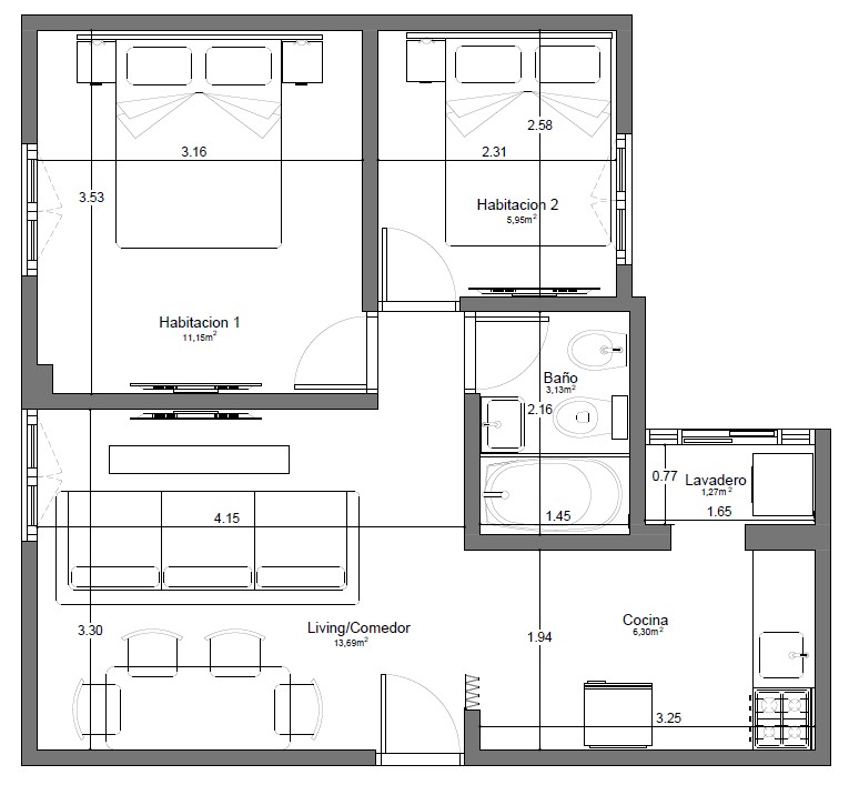
Departamento de 3 ambientes muy luminoso primer piso por escalera en el corazón de la zona residencial de villa crespo, a solo media cuadra de av. Gaona, al ingresar, un amplio living con gran ventanal recibe la luz natural durante todo el día. La estufa de tiro balanceado aporta calidez en invierno, y la distribución conecta de forma fluida con el comedor diario y la cocina, práctica y funcional, que cuenta con lavadero independiente. el baño completo, con ventilación natural, aporta comodidad y frescura. El dormitorio principal, de generosas dimensiones, mientras que el segundo dormitorio también disfruta de una excelente luminosidad. Ambos están equipados con ventilador de techo. Con bajas expensas y una ubicación estratégica, este departamento combina luz, confort y practicidad en un entorno tranquilo, con todos los accesos y servicios a mano. Comercializa migliorisi de corrientes 4599 srl profesional responsable jorge daniel gomez cpi 261 a32173 se deja constancia que las caracteristicas, medidas, expensas y superficies consignadas son aproximadas, sujetos a verificación y/o ajuste. El precio del inmueble puede ser modificado sin previo aviso. Fotos de carácter no contractual. Las unidades publicadas están sujetas a disponibilidad.
46 m2
Lateral
1
60 años
2.8 x 2.5 3.2 x 3.5
No
Oeste
No
Consultar
3
4.5 x 3.2
2.8 x 1.6
No
Independiente
 
            Migliorisi Almagro
Corrientes 4599
1152734599
Código: MGA-32173
Las medidas son aproximadas y a sólo efecto orientativo. Las medidas reales surgirón del título de propiedad respectivo.
