Resúmen de Visitas
Últimos 30 Días
Interés Fecha Nombre Celular Email Tipo

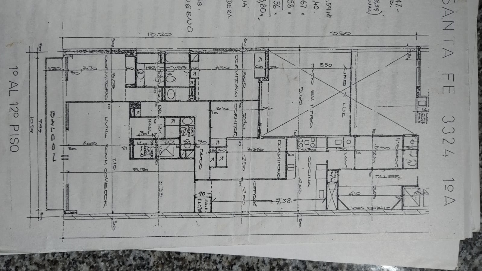
4 ambientes con dependencia (habitacion de servicio) al frente con balcon y patio de 188,82 m2 totales por escritura - excelente estado y ubicacion - dormitorio con baño en suit al frente da al balcon - 4 baños en total (1 toillete de recepcion y otro de servicio) - 2do y 3er dormitorio al contrafrente del depto orientado al patio - posibilidad de 4to dormitorio aparte del de serivicio como era originalmente 5 ambientes con dependencia - doble circulacion gracias a su balcon al frente y patio al contrafrente - reciclado a nuevo hace poco tiempo - living en l - comedor independiente - baulera y cochera fija con buen acceso - comercializa migliorisi de corrientes 5500 srl profesional responsable diego f migliorisi cpi263 a33311 se deja constancia que las caracteristicas, medidas, expensas y superficies consignadas son aproximadas, sujetos a verificación y/o ajuste. El precio del inmueble puede ser modificado sin previo aviso. Fotos de carácter no contractual. Las unidades publicadas están sujetas a disponibilidad.


Información general

Superficie Cubierta

151 m2

Superficie Descubierta

38 m2

Ubicación

Frente

Baños

4

Antiguedad

40 años

Medida Dormitorios

4x4 con baño en suite 4x4 3x3+3x3 (se puede subdiividir, fue abierto)

Apto Profesional

No

Orientacion

Noreste

Ascensores

3

Expensas

Consultar

Ambientes

5

Living

En "l"

Cocina

Independiente

Balcon

Si

Lavadero

Independiente

Habitacion de Servicio

Si

Ubicación de la propiedad

Zona del inmueble.

Vista aerea sobre del inmueble.

Vista de la zonas de interes cercanas.

Avisos relacionados

Se deja constancia que las caracteristicas, medidas, expensas y superficies consignadas son aproximadas, sujetos a verificación y/o ajuste. El precio del inmueble puede ser modificado sin previo aviso. Fotos de carácter no contractual. Las unidades publicadas están sujetas a disponibilidad.Comercializa Migliorisi de Corrientes 5500 SRL Profesional responsable Diego F Migliorisi CUCICBA 263
WhatsApp Icon