Resúmen de Visitas
Últimos 30 Días
Interés Fecha Nombre Celular Email Tipo

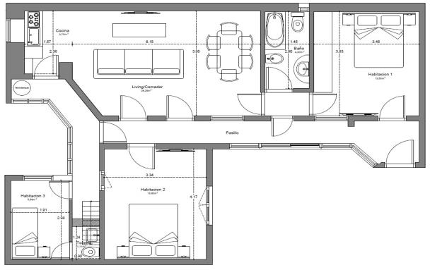
Espectacular y amplio ph sin expensas de aprox. 100m2 - 4 ambientes + cuarto extra que puede utilizarse como oficina o estudio , el ph destaca por su luminosidad y diseño, con un amplio living comedor con cocina integrada, comodas habitaciones y hermosos pisos de parquet, la ubicacion es excelente, a metros de av. Cordoba, digno de ver (94 m2 totales por escritura , los m2 el cuarto extra no figuran por escritura) - comercializa migliorisi palermo - av cordoba 3401. Comercializa migliorisi ,profesional responsable pablo sebastian migliorisi cpi 2674 b4961 se deja constancia que las caracteristicas, medidas, expensas y superficies consignadas son aproximadas, sujetos a verificación y/o ajuste. El precio del inmueble puede ser modificado sin previo aviso. Fotos de carácter no contractual. Las unidades publicadas están sujetas a disponibilidad.


Información general

Superficie Cubierta

98 m2

Ubicación

Contrafrente

Baño

1

Antiguedad

30 años

Ambientes

4

Cantidad de Plantas

1

Orientacion

Noreste

Patio

0

Expensas

Consultar

Medida Dormitorios

4x3 3x3 2,5 x 2.5

Living

No

Cocina

Integrada

Terraza

0

Habitacion de Servicio

Si

Ubicación de la propiedad

Zona del inmueble.

Vista aerea sobre del inmueble.

Vista de la zonas de interes cercanas.

Se deja constancia que las caracteristicas, medidas, expensas y superficies consignadas son aproximadas, sujetos a verificación y/o ajuste. El precio del inmueble puede ser modificado sin previo aviso. Fotos de carácter no contractual. Las unidades publicadas están sujetas a disponibilidad. Profesional responsable Pablo Sebastian Migliorisi CUCICBA 2674
WhatsApp Icon